Spacious 1-Bedroom Apartment in Varna's Galata District, Unfurnished

Spacious 1-Bedroom Apartment in Varna's Galata District, Unfurnished - Image 1
Explore all photos in high quality on the website of Address
More Photos
 apartment
 for sale
 73698 EUR
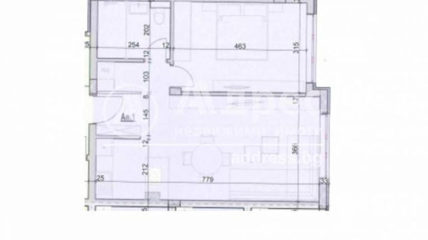
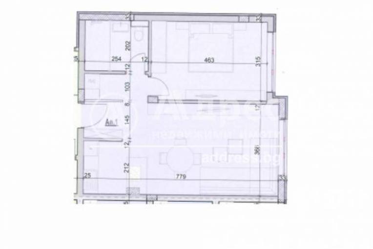
Area: 68 m²
Bedrooms: 1
 unfurnished

This charming two-room apartment is located in the peaceful and well-developed neighborhood of Galata in Varna. Covering an area of 68 square meters, the property offers a practical and functional layout, consisting of a spacious living room with a kitchenette, a cozy bedroom, a bathroom with a toilet, and a corridor. Situated on the ground floor of a modern, small multi-family building, the apartment is ideal for those seeking easy access and convenience.

The building itself is a new brick construction with contemporary architecture, situated in a quiet, green, and urbanized area. The neighborhood benefits from its proximity to essential amenities such as schools, kindergartens, shops, and public transportation stops, ensuring comfortable daily living. Although the apartment is offered unfurnished, it presents a great opportunity for new owners to personalize and design their living space to suit their tastes.

Priced at 73,698 EUR, this property combines modern construction with a desirable location, making it an attractive option for both first-time buyers and investors looking for a comfortable residence in Varna's sought-after Galata district.

Online since: 
Last seen: